Gartenplanung

Von der Idee bis zum Konzept

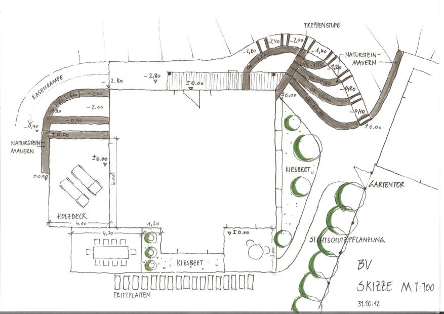
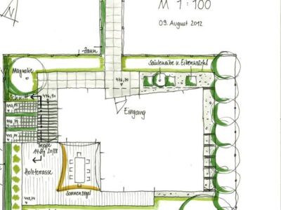
Damit Ihre Träume Wirklichkeit werden ist vor einer Gartengestaltung eine gute, durchdachte Planung erforderlich.

Mit einer detaillierten Bestandsaufnahme oder den Grundrissplänen erarbeiten wir nach Ihren Vorstellungen ein sinnvolles, pflegeleichtes Konzept und zeigen Ihnen durch unsere jahrelange Erfahrung Möglichkeiten auf, welche Ihr Projekt einzigartig werden lässt.
Insbesondere bei großen Gartenflächen ist die Aufteilung der Bereiche wichtig, um Wohlfühlathmosphäre zu schaffen. Sitzflächen, Wegführung, Pflanzanordnung, einzusetzende Materialien - das und vieles mehr fließt hier bereits in das Konzept mit ein, welches uns im Anschluss eine perfekte Grundlage zur Ausführung und zur genauen Kostenkalkulation bietet. Unsere Landschaftsarchitekten beraten Sie gerne.

Jetzte Beratungstermin vereinbaren!

WhatsApp

WhatsApp-Chat starten:
+49 8743 97892-20

Kontakt

Ottostr. 7
84144 Geisenhausen

Beratungszeiten

Telefonische Erreichbarkeit:

  • Mo. - Do. 08:00–12:00

Außerhalb, bitte auf den AB sprechen. Wir rufen Sie gerne zurück.